• Casa Erste
  • Equipe
  • Detalhes
  • Voltar ao início
  • ResponsÁveis

    Projeto de autoria do Engenheiro Abraão Rodrigues e da Arquiteta Anna Alves.

    Um time multidisciplinar promovendo engenharia de qualidade e trazendo inovação para o Brasil

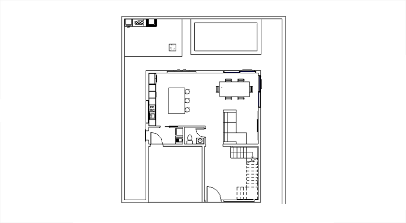
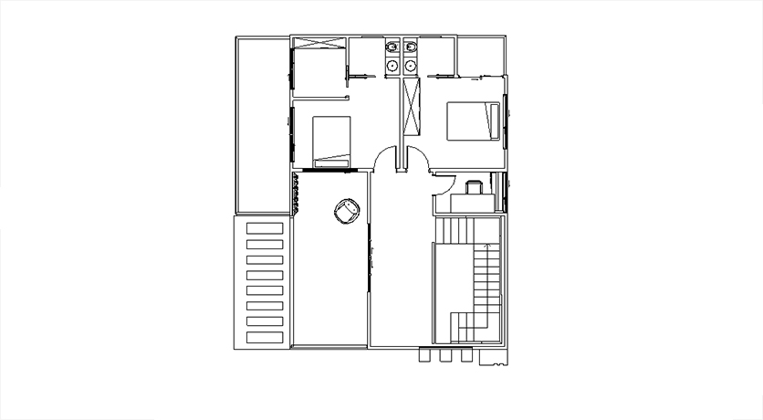
  • Plantas


    • Planta baixa

      Térreo.

    • Planta baixa

      Superior.
 2023 Akr Engenharia e Arquitetura. All Rights Reserved. Design by Abr Design